Trilocale in vendita

Marino, Via Luigi Settembrini - Santa Maria Delle Mole
€ 184.000
Prezzo aggiornato
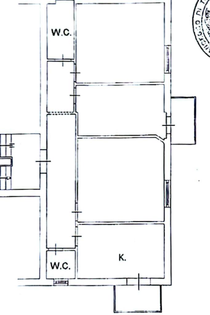
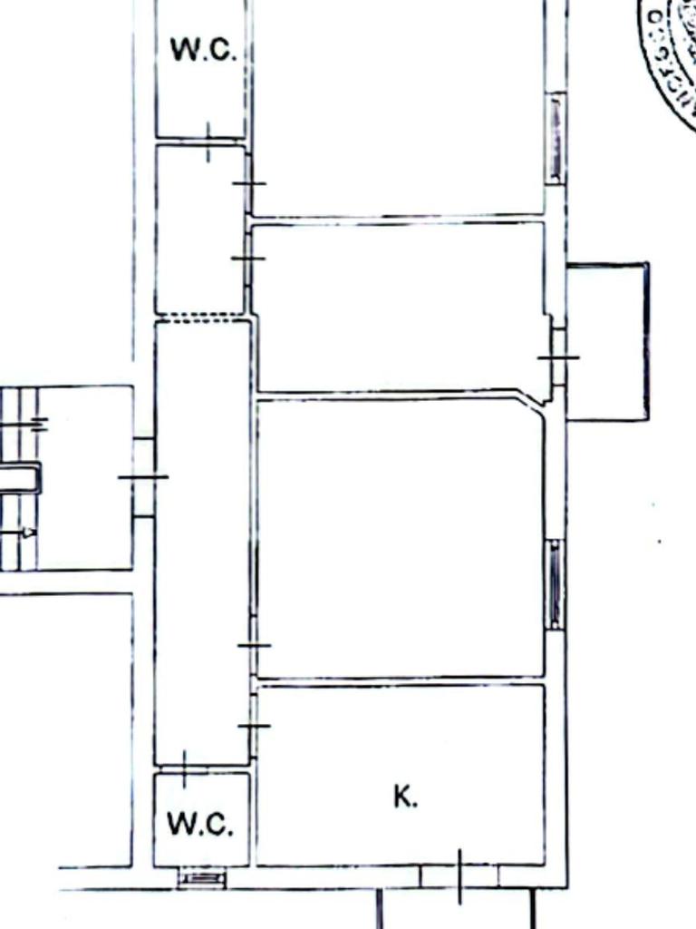
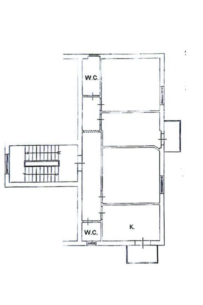
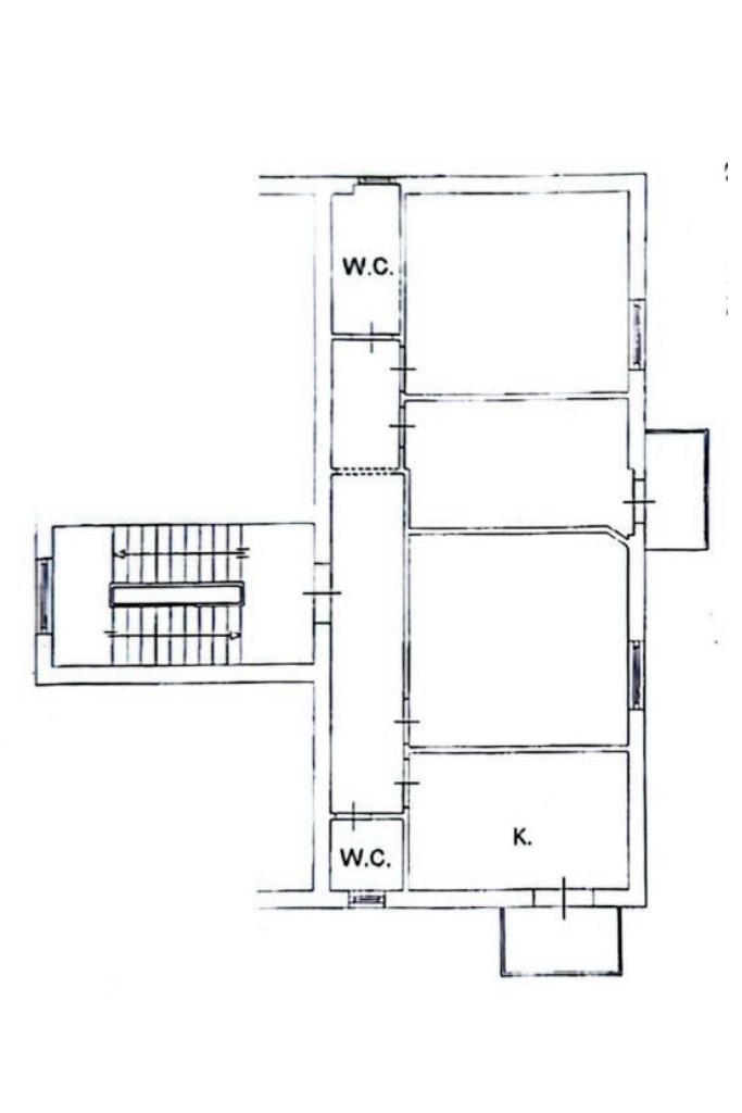
3 locali 3 locali
75 Mq 75 Mq
1 bagno 1 bagno

Trilocale in vendita

Marino, Via Luigi Settembrini - Santa Maria Delle Mole

Descrizione annuncio

Cerchi una casa pronta da vivere, nel cuore di Santa Maria? Eccola.
Un appartamento di circa 80 mq, completamente ristrutturato di recente, pensato per chi desidera comfort, stile e la comodità di avere tutto sotto casa.
Gli ambienti sono ariosi e ben distribuiti: una zona giorno luminosa perfetta per accogliere e vivere ogni momento con praticità composta da salone e cucina abitabile, una zona notte riservata che presenta una camera matrimoniale e una cameretta, finiture contemporanee e dettagli curati che fanno davvero la differenza.
La ristrutturazione valorizza ogni metro, offrendo una sensazione di ordine e funzionalità dal primo ingresso.
La posizione centrale è il vero valore aggiunto: negozi, servizi, scuole e trasporti sono a pochi passi. Qui ti muovi a piedi, senza rinunciare alla qualità degli spazi interni—ideale per professionisti, giovani coppie o per chi cerca un punto d’appoggio elegante e strategico.
Se vuoi una casa che non richieda lavori, dove ogni scelta è già stata fatta con gusto, questa è quella giusta.
Chiama ora e prenota la tua visita: le case così, in centro, non restano disponibili a lungo.

Mostra tutto

Nelle vicinanze

Trasporto pubblico Trasporto pubblico
Santa Maria delle Mole
Santa Maria delle Mole
1,1 Km
Casabianca
Casabianca
1,6 Km
Santa maria
Santa maria
1,3 Km
santa maria
santa maria
1,3 Km
Ricariche auto elettriche Ricariche auto elettriche
Mirauto Nissan
940 m
CONCESSIONARIO NISSAN Mirauto
950 m
CM Motors | EnelX
2,8 Km
Scuole Scuole
Scuole
130 m
Vivaldi
1,1 Km
Scuola Anna Frank
2,5 Km
Istituto Maria Immacolata
2,6 Km
Scuola Media Statale Umberto Nobile
2,7 Km
Farmacia Farmacia
Farmacia
2,6 Km
Farmacia Peretti e Santori
2,9 Km
Supermercati Supermercati
SISA
810 m
Coop
960 m
Eurospin
1,2 Km
Top
1,9 Km
Despar
2,1 Km
Negozi Negozi
KIRK
2,6 Km
Cose di casa
2,9 Km
RUBACUORI
2,9 Km
MINIMARKET
2,9 Km
Blog
3,0 Km
Bar Bar
Chef Express
2,4 Km
Bar
2,6 Km
BUDDHA BAR
3,0 Km
Ristoranti Ristoranti
La Madre Panza
170 m
La Madre Paranza
2,0 Km
Ristoranti
2,1 Km
Il limoncello
2,2 Km
Amapola Dancing Club
2,2 Km
Mostra tutto

Caratteristiche

Rif.:
61118675
Piano:
1 di 3 (Piano medio)
Balconi:
2
Camere da letto:
2
Arredamento:
Completo
Condizionamento:
Autonomo
Mostra tutto
Prezzo Prezzo
€ 184.000
Rata mutuo Rata mutuo
€ 854 / mese
Spese annue Spese annue
€ 600
Proponi il tuo prezzoProponi il tuo prezzo
Immobile valutato con T·Valuta

Classe Energetica

E
E
E
E
E
E
E
E
E
EP globale non rinnovabile:
179.00 kW h/m² anno
EP globale rinnovabile:
179.00 kW h/m² anno
EP invernale del fabbricato:
EP estiva del fabbricato:
Anno di costruzione:
1967
Riscaldamento:
Autonomo
Tipo impianto:
Ad aria
Tipo alimentazione:
Metano

Prezzo ridotto di €1 (3%%)

Ti interessa visionare l'immobile?

Fissa un appuntamento  Fissa un appuntamento

Richiedi informazioni

Clicca su Leggi per aprire l'informativa
* Questi campi sono obbligatori

Calcola il tuo mutuo

Semplice e senza impegno
Anticipo

( % )
Mutuo

( % )

pochi semplici passi

inserisci i tuoi dati
Questionario completato
Grazie per aver richiesto un appuntamento senza impegno con un nostro Consulente del Credito e Assicurativo.

Hai inserito correttamente tutti i dati necessari e a breve riceverai una e-mail con un link da convalidare per inviare i tuoi dati.
Affiliato
Santa Maria Delle Mole Srl
P.zza Palmiro Togliatti, 1 00047 Marino (RM)

Il nostro staff


  • Flavia Biondo
    Affiliata

  • Nicolas Cipelletti
    Collaboratore

  • Abdul Razak Dabre
    Collaboratore

  • Alessandro Pinna
    Collaboratore
P.zza Palmiro Togliatti, 1 00047 Marino (RM)
Zona: Santa Maria Delle Mole
Mostra su mappa
Orari: lun ven 9-13 15.30-19:30
Affiliato
Santa Maria Delle Mole Srl
P.zza Palmiro Togliatti, 1 00047 Marino (RM)

2026 Tecnocasa Franchising S.p.A. - P. IVA 08365160152 - Via Monte Bianco 60/A 20089 Rozzano (MI). Ogni agenzia ha un proprio titolare ed è autonoma. Privacy policy | Policy utilizzo | Cookie policy